BYT NA LABSKÝ PALOUK

Celý návrh interiéru vychází z jednoduché, ale silné myšlenky. Propojit byt tak, aby každý jeho kout přirozeně navazoval na další. Aby všechno ladilo nejen na pohled, ale i pocitově. Chtěli jsme vytvořit místo, kde se dobře žije. Místo, které vás obejme hned, jak do něj vstoupíte.

Základ tvoří dřevo. Jako teplý a nadčasový materiál vnáší do prostoru klid a harmonii. Dřevěná bělená podlaha odráží denní světlo a zjemňuje celkový dojem, zatímco měkké textilie v tónech šedé a béžové dodávají interiéru útulnost.

Výsledkem je lehký, vzdušný a příjemně klidný interiér bytu, který působí přirozeně. Jako doma.

klient

Jan Kmoníček, Adéla Prüherová

autor

Tomáš Kulička

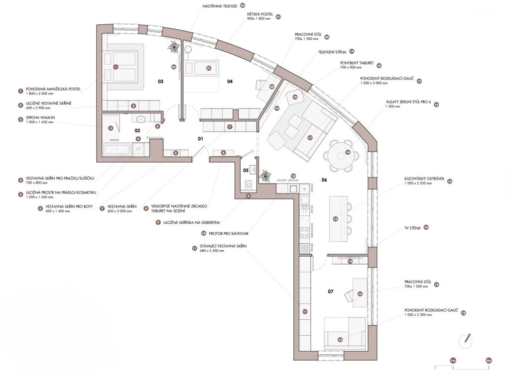
půdorys